Área do Cliente
|
Acesse pelo celular

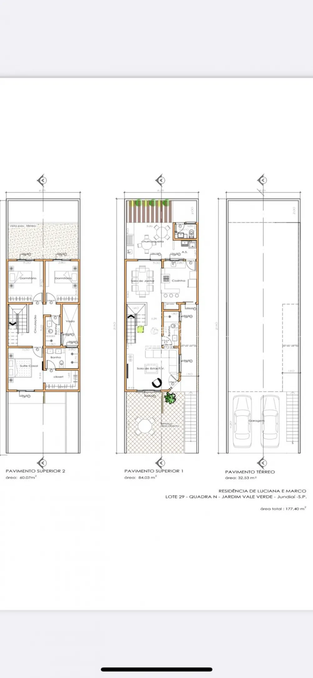
CASA À VENDA COM 03 DORMITÓRIOS (01 SUÍTE) LOCALIZADA NO BAIRRO RESIDENCIAL (JARDIM VALE VERDE) EM JUNDIAÍ-SP.

Casa Sobrado - Jardim Vale Verde Residencial para Venda em Jundiaí

|
Compartilhe:
Total para Acessórios valores sujeitos a alteração.

Venda

(ITBI, Registro, Escritura e Certidões)
Consulte-nos
Residencial
Finalidade
10715
Referência
3
Dormitórios
1
Suite
2
Banheiros
2
Garagens
134.00 m²
A. Terreno
177.40 m²
A. Construída
Descrição do Imóvel

Excelente casa nova, localizada no bairro Residencial (Jardim Vale Verde) em Jundiaí-SP. Com área construída de 177,40 m² composta por: 03 dormitórios, sendo 1 suíte com armários, sala para 2 ambientes com gesso e teto rebaixado, cozinha planejada com cooktop, área de serviços, banheiro social com blindex e gabinete e 02 vagas de garagem cobertas.

Próximo a escolas, supermercados, comércios locais e de fácil acesso as rodovias e ao centro de Jundiaí.

Itens do Imóvel

Armários
Box Blindex
Churrasqueira
Cozinha
Iluminação
Portão Eletronico
Sala de Estar
Sala de Jantar

Vídeo do Imóvel

Simule um Financiamento

Localização Casa / Sobrado em Jundiaí


Venda

(ITBI, Registro, Escritura e Certidões)
Consulte-nos

Total
770.000,00

DÚVIDAS SOBRE O IMÓVEL
PREENCHA O FORMULÁRIO


Concordo com os Termos e Privacidade
Imóveis Similares